Inside a Farce

  A production-tech colleague recommended me to the Arlington Friends of the Drama as someone who might be able to help with lighting their Spring 2018 show, a lively cops-n-baddies comedy called Unnecessary Farce.  It seemed like a nice opportunity to get in on a community-theatre project at a design level again, as it had been some time since I'd done that.  As the show's director noted at the very first production meeting, the actors do all the heavy lifting in this one and lighting was about the simplest aspect of the whole thing -- it could easily be as little as four or five cues, a generic wash up/down for each act.  Perhaps appropriate for my first go in a new space, but I found some fun subtleties to tackle and additional areas to get involved in as things progressed.

[Images here are linked to larger copies.]
Arlington Friends of the Drama venue The venue is small; the building began as a neighborhood church *way* back in the day, but has been a theatre space for quite a while now.  It is sort of narrow and long, so the stage goes pretty deep relative to its width.  The set for this show was arranged very far downstage on a big thrust, so far that its side walls intersected the main curtain line.  Slots were cut in the walls later to allow the red border to hang straight.  Most of the real upstage space, which is partially occupied by wood storage racks anyway, remained empty for this one.

Access to the house pipes is via wrestling an extension ladder into the seats and cranking it up to lean against the big ol' beams.


Scary lighting pipes over stage The over-stage grid consists of undersized pipes suspended on a just pair of ropes per, that pass over a couple of pulleys to a static pin-rail.  No fly system as such, but since there are quite a few ringbolts along the upper wall junctions, the pipes can be placed just about anywhere before getting gear hung on them.  A fairly generous set of circuits emerges out of high battens as twistlock on long tails.

Prominent on my punchlist was to take several units *off* that one pipe that was obviously loaded heavy, apparently from the previous show.


Dimmer rack setup and various legacy wiring Three old but solid CD80 packs drive the rig, with all the outputs hardwired out to the stage and house.  An additional wall-mount pack not seen here brings it to nominally 78 circuits, including the house lights.

There is also a lot of, uh, "legacy" wiring and rigging arrayed around the place, hinting at many Old Tech Mysteries and lending a bit of that "delightfully ratty" feeling to things.  Fortunately, I was more or less given free rein to explore as long as I was careful not to break anything.


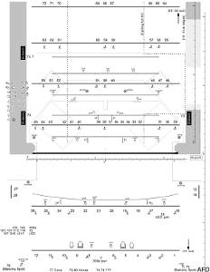
Working diagram As show planning and execution got under way there wasn't that much for me to do early on, although I did go in a couple of times to shoot some measurements and then stuck around to help with minor set-build work.  I was able to take someone's previous circuit plan diagram and rework it into a useful design aid, in the form of many layers in a GIMP image file [right-click to download] with little templates that I could move around.  Eventually the working set-wall placement got added to that, and I could figure out where I could actually best originate light from.  Circuits would come from whatever was handy nearby.

The basics of the .XCF file can be of good use to the GIMP-savvy on future shows.


At one point during the play there's a stray gunshot, and the original idea was to have a special lamp practical motorized to spin its shade around and expose a big bullet hole to the audience while the cast stares at "where that shot went".  A very clever idea, but unfortunately it wasn't going to work out the way it was originally intended.
 
Sightline problem with table lamp placement The table lamps selected presented a serious problem with sightlines from the audience, planting the shades right at head level for just about anyone upstage of them.  The cute shade-spin trick therefore wasn't going to work out in the larger sense; the lamps were eventually moved off to the sides.

Early ceiling fixture test The set design called for compact ceiling practicals over each entry door, mounted in dropped ventilation soffits like those typically found in hotel rooms.  Suitable fixtures had already been purchased, but sat around in their boxes until enough of the set was in place.  It fell to me to install them, and to find suitable wiring, connectors, and bulbs to make them work smoothly on the dimmers.  The hardest part of it was finding all the necessary parts in an unfamiliar venue, but enough ransacking in obscure storage places eventually turned up what I needed.

The soffits themselves were also going to be a significant lighting headache, making it almost impossible to light all of the set's upstage wall.


Quick-n-dirty taped wiring hookup for practicals Low-power practical lights don't get particularly fancy wiring run to them; a handful of zip cord, wire nuts, electrical tape and a couple of circuit adapters is about all it needs.  As long as it's out of the way it's good, and in this case I was high up over the set grabbing a ceiling circuit and splitting it in a quick-n-dirty taped splice to the two soffit lights.

[The junctions I'm holding are *not* attached to the brown wire running across the horizontal surface lower down; the perspective of the picture just came out that way.]


Ceiling fixtures on soffits working nicely Slightly sketchy or not, the soffit lights worked nicely once provisioned with incandescent bulbs.  Which are going to become harder and harder to find as time goes on...

The practicals helped balance out light around the entry doors, but I also managed to shoot a narrow band of front light skimming just in under the soffits from low in the back of the hall, to blend a little better and lessen the deep shadows above the doors.  The only evidence that it came from one house-left-ish fixture is a small darker rectangle above where the actor is hiding in the connecting-door space and the shadow sort of bisecting his head -- not enough to worry about once everything was blended together.


  Even though it seemed like a simple base plot, there were interesting subtleties to take into account, notably keeping all visible motion confined within its own designated room.  As I wrote to my technical colleagues at some point during all this:

The set is two rooms in a second-rate roadside motel, but without a physical wall in between them except for the connecting doors.  The challenge was lighting each in a truly independent way, including taking into account where shadows would (not) fall -- it wound up almost like lighting two separate sets, even though they're mirror-image identical and not much changes during the entirety of the two acts.  It was all about directionality, beam control and subtle edge quality.  We referred to it as needing to "spray that whole centerline with a wide swath of Beam-Stop(tm)" but not make it too obvious.

So one component was basically straight-on from the house and what amounts to the first electric, in a cool; the second major component was two diverging sets of warm to pick up just along the middle and fire outward to the sides.  Warm along that path would vaguely hint at in-room light from the center table fixtures which of course weren't there later, but what of that.  The front cool would reflect the daylight streaming in through the, uh, unusually large picture-windows that all of us, sitting outside the hotel building, would be watching the show through.  A third direction of simple pinkish downlight rounded things out, emphasizing the beds -- pink to punch up all the pseudo-sex going on there, or whatever.  So that's the aesthetic and the spatial limitations I was working with.

The space owns a couple of moving lights, a collection of gobos, and some LED wash fixtures similar to my RokBoxes.  I racked my brains for a while thinking how I might use any of that stuff, but it just wasn't appropriate for what this show needed.  We even took down a couple of old I-Cue units to make room for where I needed normal fixtures.  Except for a couple of LEDs used for effects later, it was just all straightforward ellipsoidals and fresnels and bog-standard gel colors, albeit with very picky tweaks to shutters and focus.


Lighting the room separation I think I got the separation pretty clean, as this actor temporarily breaking the "fifth wall" in the center shows.  Cross-shadows were minimal to nonexistent, color balance was natural and pretty even, and nothing looked excessively stark.  I had to add maybe one more light later to cheat a little more oomph into a key spot we observed as dim, but that was it.

And the funny thing is that the rooms would never be lit at different levels, although I had to orient everything as though they would be.  I added a pair of inhibit subs to bring either one dark and solo the other, just to test the separation back and forth, and it was satisfyingly crisp.


Ripping long pieces of wood for virtual wall Mr. Trenchcoat in the previous pic was straddling a low placeholder for the nonexistent wall -- we still needed something to visually set the line in viewers' minds, and the actors would have to carry the rest of the illusion.  To frame up a semi-realistic stub wall all of 3 inches high but close to 15 feet out, some long lumber had to get ripped down and assembled in place.

The set shop is quite well organized, and the folks who routinely staff it are really good about cleaning up and putting things away after a work session.  They sort of have to, because it's not a lot of space to work in.


Sprinklers, warning stickers, and klunky video wire The set received lots of attention to detail -- down to the warnings posted next to very realistic-looking [3D-printed!] sprinkler heads, convincing rate and rules signs and phone-charge detail cards, nicely stained moldings and baseboards, mirror-image large prints of Scottish castles, and many other nice touches.  This sloppy "wire" obviously run between rooms through the HVAC was not a mistake -- this was to show that our bumbling cop characters had done the best they could at concealing their video-monitoring handiwork.  The wire was actually thick tie-line, and it was impossible to tell.

Video monitor smoke puff effect With the lampshade trick off the table, so to speak, the director came up with a fairly ingenious alternative to go with the sound cue and my LED flash and help carry the gunshot effect.  A small funnel with cheesecloth over it held a small pile of talc and graphite powder mix; a quick puff through a long piece of vinyl tubing run to backstage would briskly launch the powder into the air and make a very convincing "smoke cloud" over the TV monitor.  With things combined and sequenced the right way -- the flash, a quick bang-crash-tinkle sound cue, the smoke puff, and all the actors suddenly looking over at the monitor -- it worked beautifully.

Props table The shop becomes part of the backstage for show runs; these props tables hinge down to sit flat when needed, and are otherwise fastened up out of the way.

  I finally got to sit down with the stage manager and go through my proposed cue-points, which I'd marked for rapid access in the script.  Here I noted that we had different philosophies regarding how to run lighting for a show.  She wanted *everything* in the cue stack, from house-open to shutdown, and leave nothing to manual control.  Usually I have house-lights on a sub someplace for independent control, run most of what I need off scene combinations, and if I do a cue stack at all it's usually to keep track of base flow or help with making something complex more consistent.  But she had a point -- I was going to hand all this off to someone who hadn't seen the development of the run, so it made sense to have it all as canned as possible and referenced by number and go-button presses.  She added it all to her run script and I went back upstairs, banged it all into the board, and made sure it would come up on page 1 when everything got powered up.

The only exception was the gunshot flash -- the Express 250 was too *slow* to run a follow snap-out cue even set at 0.1 second, so instead that had to be a fast tap on a bump-button almost like typing on a keyboard.  Those LEDs would probably be full-on for all of one or two DMX cycles, but it was enough.


  Show shots

These are actually from one of the last dress rehearsals, which I ran the board for, and then another member of the crew took over as board operator for the real runs of the show.
Cue 1, preset look So here we are in cue 1: a dim preset look, with all the practicals at a low but visible level, and house lights still up.  A lot of house light spills onto the set, but that's unavoidable because of where it sits and completely unimportant here.  Since I shot this from the booth, there's a reflection of my hands in the window; I turned the booth worklights down after that which helped.


Tangled up in phone cord Officer Sheridan, working undercover, "been up for hours" and clearly ready for duty.  Not.

Huge tray of donuts "Donut?

I think I got enough to last us the morning..."


TV monitor light effect Here's where lighting got any fancier than the basic wash.  When the script called for the "TV monitor" to be turned on, an additional shot of pale blue arrived into that room shuttered just over the TV prop, from the *other* back corner of the house.  This visibly "blued up" the area like a video screen might, close to the correct angle shining onto nearby faces, and gave just the right starkness of shadow behind a viewer to carry the effect.  The pink doors showed the difference really well.  Actors learned to "telegraph" their on/off motions with the remote so the cues could be called and it would be more obvious to the audience, and the cueing in the board was even programmed to bring on the "TV" fairly bright at first and then very slowly sneak it down a little to keep the overall look less harsh.  Subtle, but it worked.

Wrestling matches in both rooms Simultaneous wrestling in both rooms, with very different intent and dialogue.

Playing a bonny sang "I sha' play fur ye a bonny sang ay mah homelain ..."

Highland hit-man at work The Highway Highland Hit Man at work to "tidy things up"

Billie tied up Billie hiding in plain sight

Pit er in thar "Pit 'er in thaur..."

A tender discussion of bagpipe inadequacy A tender moment of reflection on bagpipe dysfunction

Billie in the air Billie in the air, headed for the closet again

Is he dead? "He's alive, he's just unconscious."

Sixteen milion dollar check "...what I should do with a sixteen million dollar check?"

 

And the crowd watching in the next room goes wild...


Ms. Meekly climbing over bed Standoff with multiple guns
Graciously helping the Mayor's wife over the bed, and then instantly back to the standoff

The Tallahassee flip! The Tallahassee Flip!

Curtain call Bows.

Here, one more light came on to help break the "fifth wall" darkness and light the cast all the way across.


  The show ran for two weekends, and everyone seemed to be wishing that the run was longer because of all the work that everyone had put into it!  But even just six or seven runs with a real audience is quite a strain on actors and run-crew.  What was really interesting for me was to see how much the actors' delivery of the show evolved between rehearsals I watched and the last show, which I attended just as audience.  Hard to describe -- it felt like they were more settled into the roles and characters by the final night, but possibly hamming it up a bit more as a side-effect of greater confidence.  Dunno.  Anyway, it was still hilarious and brilliantly executed.  The lock-step of the "completely separate" dialogue between the two rooms is one of the best aspects of the composition.

But all good things must eventually end, and the set itself was one of them.  Because of the eight doors in very active use, it had to basically be framed up like a house, or maybe a hotel -- no wiggly walls here!  It began life as big stacks of new 10-foot 2x4s and lauan sheets loaded into backstage, and took the tireless work of many to put together in a sufficiently robust fashion.  Doors could freely slam and the rest of it basically wouldn't move at all.  And now the whole thing had to be reduced back to lumber stock.


Breaking the 5th wall, literally There were some parts used in the hastily-constructed practical wiring that I felt obligated to un-appropriate and put away properly, so I came in a little early for set-strike to de-install all that stuff and wound up staying through the whole deconstruction.  Now it was my turn to break the fifth wall -- literally, as I unscrewed the long boards from the deck and then kicked the whole assembly loose from where it was sort of stuck to the carpet with paint.

Set strike: barefoot in a sea of drywall screws And given all the rough stuff I'd been walking on over the last year-plus, I saw no point in having footwear for any of this.  I realize that most people would view this as somewhere between heroic and utterly nuts, but really, drywall screws lying on a deck are on their sides, and the threads and little bugle-heads don't stick up enough to be a notable problem for a seasoned barefooter -- in fact it all feels rather entertaining to walk on.  Stiff shoes are in fact more likely to roll out from under someone on these, where bare soles just mold to the shapes as needed and maintain secure floor grip.  I am always more likely to tear up my hands on this kind of work than my feet, but I didn't have work gloves on either and only a couple of folks on the crew bothered with those.
Social brainwashing has made almost everyone forgo and forget the inherent toughness and capability of the human foot and our hardwired instinct to step carefully when needed, but a few of us enjoy being healthy living examples of the physical truth.  As it says in my main index, all four hands in play working the gig, especially when up a ladder!  My only obligatory shedding-of-blood on this show came early on, from my thumb, by a small upholstery staple sticking out of the back of a chair when I went to grab it and move it.  I went and got pliers and pulled it out of the chair frame; problem solved. 

_H*   180605